Bács-Kiskun megye, Soltvadkert
 

Ingatlan adatai

Irányár: 75 000 000 Ft
Típus: lakás (tégla)
Kategória: eladó
Alapterület: 322 m2
Fűtés: egyéb
Állapota: felújítást igényel
Szobák száma: 12
Építés éve: 1972
Szintek száma: -
Telekterület: -
Kert mérete: -
Erkély mérete: -
Felszereltség: -
Parkolás: -
Kilátás: utcai
Egyéb extrák:  
-

Részletes leírás

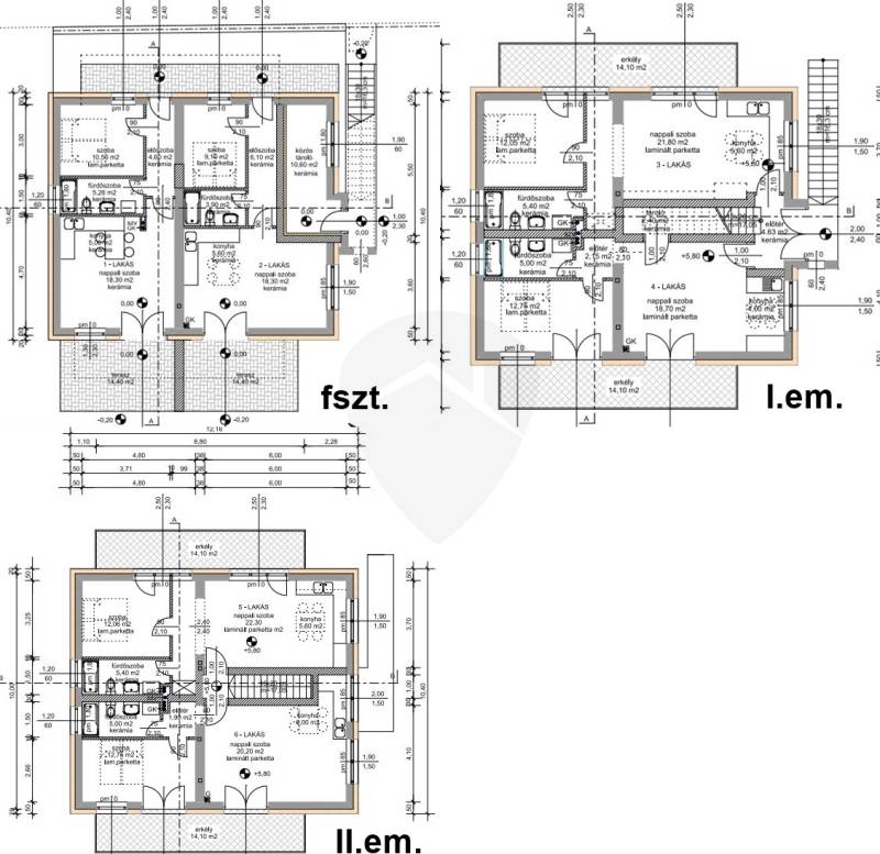
Amennyiben Ön befektető, aki a megfelelő lehetőségeket keresi a piacon, figyelmébe ajánlom ezt a különleges, Soltvadkert központjában található ingatlant. Az összesen 322 négyzetméteres használt lakóingatlan, 3 szinten 2 lakóegységgel, lakóegységenként nappali + hálószobával ( 50m2/ db. ) rendelkezik, amely kiváló lehetőséget kínál a felújítás utáni eladásra, bérbeadásra. Az ingatlan felújítandó állapotban van, ami lehetőséget ad arra, hogy saját elképzelései szerint alakítsa ki a belső teret, így maximálisan kihasználva a benne rejlő potenciált.Konkrét, építész által elkészített műszaki leírás és tervek állnak rendelkezésre. ( +5M ) Igény esetén kivitelező céget is tudunk kiajánlani a befektetésének kivitelezésére.Az udvaron 6 db gépkocsi-beálló kerül kialakításra, a 40%-ot meghaladó zöldfelületen a jelenleg is megtalálható évtizedes fák meghagyásával kellemes és meghitt, nyugodt közös belső kert születik. A két földszinti lakás saját elő- és hátsó kerttel rendelkezik, melyre a teraszok is nyílnak, illetve az emeleti udvari lakások erkélyei is erre néznek majd.Meglévő építmény ismertetése:Az ingatlan a tervek szerint 1974-ben épült az alábbi szerkezetekkel:- Alapozás: Teherbíró talajig vezetett kútalap, talpgerendákkal összekötve- Teherhordó falak: 30 cm vtg. Égetett üreges falazótégla- Födémek: 19 cm magas, előfeszített vasbeton gerendás, kerámia béléstestesfödémek, 60 cm-kénti gerenda kiosztással.- Tetőfödém: Közbülső födémekkel azonos szerkezet lejtéses salakfeltöltéssel,védőbetonnal lezárva, bitumenes szigeteléssel, egy irányban az udvar felé lejtésűlapos tetővel.- Erkélyek: Monolit vasbeton szerkezetek, melyek el lesznek bontva.- Nyílászárók: kívül-belül elrongálódott fa szerkezetek, melyek egy része kibontásrakerült.- Felületképzések: A kőműves szerkezetek vakolt kivitelűek. Soltvadkert, kedvező elhelyezkedése révén ideális választás lehet a befektetők számára. A környék csendes, biztonságos, ami különösen vonzó lehet a családok, illetve az ingatlan bérlők számára. A városban számos helyi szolgáltatás áll rendelkezésére, mint például boltok, éttermek és iskolák, amelyek megkönnyítik a mindennapi életet. A közlekedési lehetőségek is kedvezőek, hiszen a város jól megközelíthető autóval, és a tömegközlekedés is könnyen elérhető, ami biztosítja a zökkenőmentes közlekedést a környező települések felé.A projekt előnyei összefoglalva :⦁ stabil alapok, masszív vasbeton szerkezet, jó födémek(statikai szakvélemény alapján)⦁ 40%-os készültségi állapot, amely jóval meghaladja a vételárat⦁ kész építési és statikai tervek⦁ a kivitelezés azonnal megkezdhető⦁ rendkívül gazdaságosan és gyorsan kivitelezhető projekt⦁ új építésű társasházi lakások alakíthatóak ki – 5%-os ÁFA-kulcs az értékesítésnél⦁ beszerzéseknél fordított ÁFA alkalmazása⦁ 3%-os START -hitelre alkalmas lakások⦁ a piacon legkeresettebb típusú és méretű lakások⦁ csendes, biztonságos, minőségi lokáció⦁ kiváló infrastruktúra, közeli bevásárlási lehetőségekés a legfontosabb : kockázatmentes, magas megtérülésű beruházás, akár értékesítésben, akár bérbeadásban gondolkodik.A környék folyamatosan fejlődik, ami további értéknövekedést ígér a jövőben. Ha bármilyen kérdése merülne fel az ingatlannal vagy a vásárlási folyamattal kapcsolatban, kérem, ne habozzon megkeresni. Szívesen állok rendelkezésére és segítek Önnek a legjobb döntés meghozatalában.

Hirdető adatai

Hirdető neve: Új Otthon Ingatlan powered by RH
Kapcsolattartó: Felföldi Mihály
Hirdető telefonszáma: +36 70 412 5656
Honlap: -

Üzenetet küldhet a hirdetőnek:
Az Ön neve:
Az Ön e-mail címe:
Üzenet: