Bács-Kiskun megye, Kecskemét
 

Ingatlan adatai

Irányár: 480 000 Ft/hó
Típus: lakás (tégla)
Kategória: kiadó
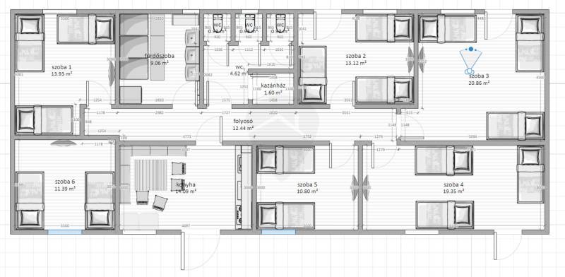
Alapterület: 140 m2
Fűtés: gáz (cirko)
Állapota: -
Szobák száma: 6
Építés éve: 2020
Szintek száma: -
Telekterület: -
Kert mérete: -
Erkély mérete: 20 m2
Felszereltség: -
Parkolás: -
Kilátás: udvari
Egyéb extrák:  
-

Részletes leírás

Kiadó, egy kiváló állapotban lévő, bútorozott és gépesített, 140 nm alapterületű, 6 szobás, 12 fő elszállásolására alkalmas, 1 közösfürdőszobás ingatlant, amely Helvécián található. Az ingatlanhoz tartozik egy 20 nm-es terasz és udvari beálló parkolóhely is. Az ingatlan kiváló állapotban van, és szeptember 1.-től költözhető. A fűtést gáz (cirkó) biztosítja, így nem kell aggódni a hideg téli napokon sem. Az ingatlan helyszíne kiváló, közel van a városhoz és a fontosabb közlekedési csomópontokhoz, ill. a déli ipartelephez. Az autóval érkezők számára az ingatlan könnyen megközelíthető, és az udvari, zárt parkolóhely biztosítja a parkolási lehetőséget. Kaució: 2 hónapMin.birtokbaadási idő: 12 hónap, lehet kevesebb is, de akkor emelkedik a bérleti díj. Birtokba-adási idő: szept. 1.-től. Jelenleg, minden szobában 2 ágy van, az alaprajztól eltérően. Ha kérdése van az ingatlannal kapcsolatban, kérjük, ne habozzon kapcsolatba lépni velünk.Az ingatlan bérbeadása hosszú távra tervezett, így biztos lehet benne, hogy hosszú távon biztonságos megoldás lehet munkatársainak.Várjuk érdeklődésüket!

Hirdető adatai

Hirdető neve: Új Otthon Ingatlan powered by RH
Kapcsolattartó: Felföldi Mihály
Hirdető telefonszáma: +36 70 412 5656
Honlap: -

Üzenetet küldhet a hirdetőnek:
Az Ön neve:
Az Ön e-mail címe:
Üzenet: